Delivering More
Our partner products showcase the power of collaboration. By working closely with leading innovators, we help bring tailored solutions to life—ensuring seamless integration, reliable performance, and smarter workflows. Together, we deliver tools that drive efficiency and unlock new possibilities across every stage of the project lifecycle.
Door Factory
Doors in Revit made easy. Put the creativity back into your designs and stop spending time on family creation.
An impressive selection of Revit doors can save you lots of project time. You can choose from a huge variety of door actions, panels, handles, jambs, trims and other components. Use the RevitWorks Door Factory or download our doors and get access to a huge variety of different doors. Be it interior, entrance, garage, sliding, swinging, bi-fold or interconnecting doors, you can find them all in the RevitWorks door families.
An impressive selection of Revit doors can save you lots of project time. You can choose from a huge variety of door actions, panels, handles, jambs, trims and other components. Use the RevitWorks Door Factory or download our doors and get access to a huge variety of different doors. Be it interior, entrance, garage, sliding, swinging, bi-fold or interconnecting doors, you can find them all in the RevitWorks door families.








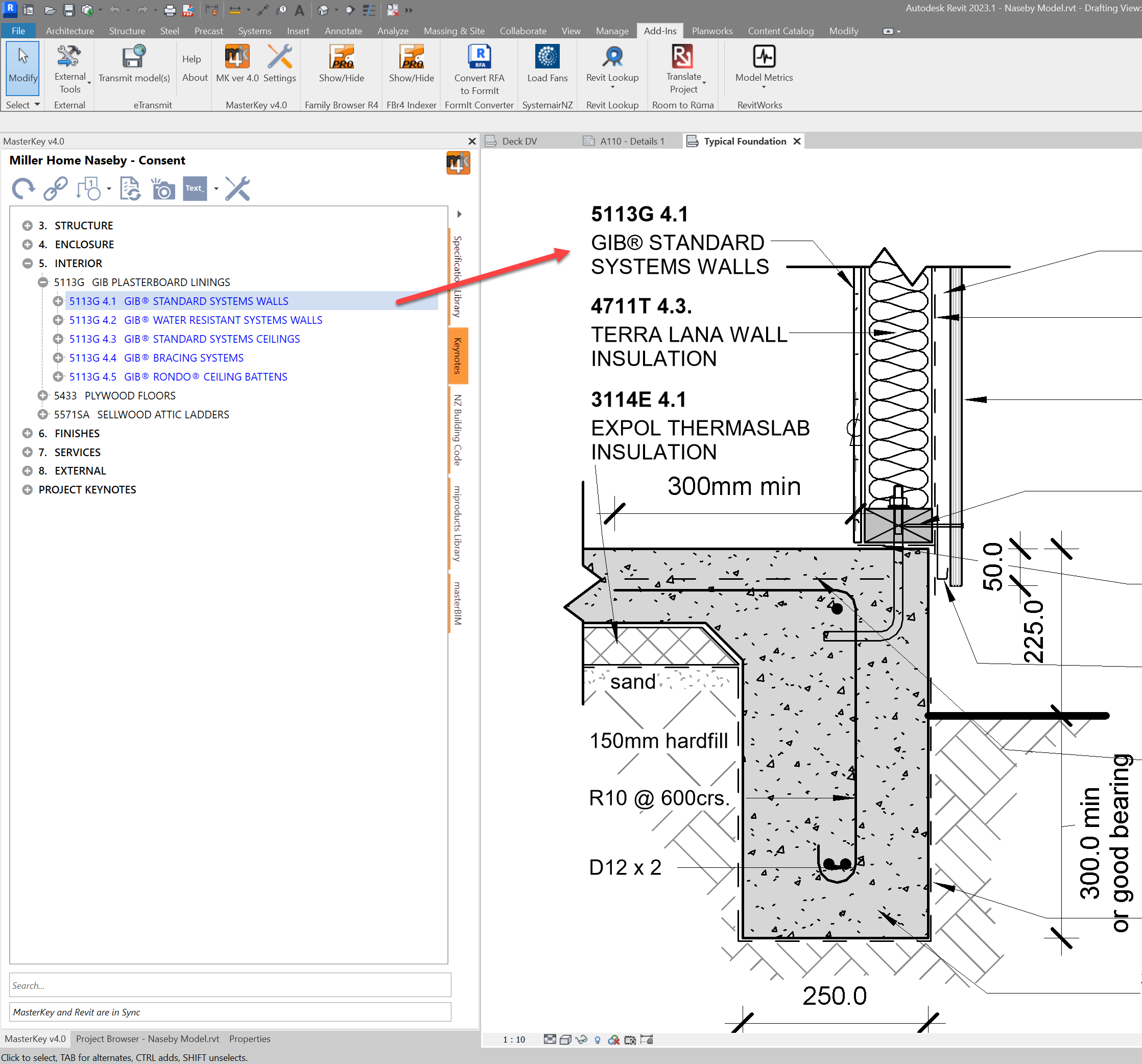
MasterKey
MasterKey for Revit – Smarter Specs, Seamless Design
MasterKey connects your Revit drawings directly to your Masterspec specifications, ensuring your project data is always accurate and up to date. With features like drag and drop keynote placement, real time updates, and automatic syncing, it eliminates manual entry and reduces errors. Designed for architects, engineers, and specifiers, MasterKey streamlines collaboration and boosts efficiency across BIM workflows.



Room to Rūma
Bringing Te Reo Māori to Autodesk Revit
Kiwicodes, in collaboration with Zeawii Ltd and PeddleThorpe Ltd, are proud to introduce the very first te reo Māori dictionary translator for Autodesk Revit. This groundbreaking tool features a Custom Dictionary Editor and automatic translation of Room names into the native language of Aotearoa New Zealand. By weaving te reo seamlessly into Revit workflows, it not only enriches the user experience in a welcoming and authentic way, but also sets a powerful precedent for the integration of indigenous languages in design technology—both here and around the world.



FlatTak
FlatTak – The Ultimate Group Organizer
FlatTak makes it effortless to manage any group—whether it’s your flatmates, sports team, or circle of friends. With powerful features like bill tracking, a task organizer, group chat, and shared lists, FlatTak keeps everything in one place so you can focus on what matters most. Launching on iOS and Android in early 2026, FlatTak has all your group living and organizing needs covered.

